利達火災報警控制器尺寸篇
今天給大家介紹一下利達常用的設備相關尺寸
煙感、手報、聲光、模塊的安裝尺寸都是標準的60MM
吸頂廣播開孔尺寸建議150MM~170MM之間
標準立柜的尺寸如下圖:


CRT機柜尺寸如下圖:

標準單雙組琴臺柜尺寸如下圖:

豪華琴臺柜尺寸如下圖:

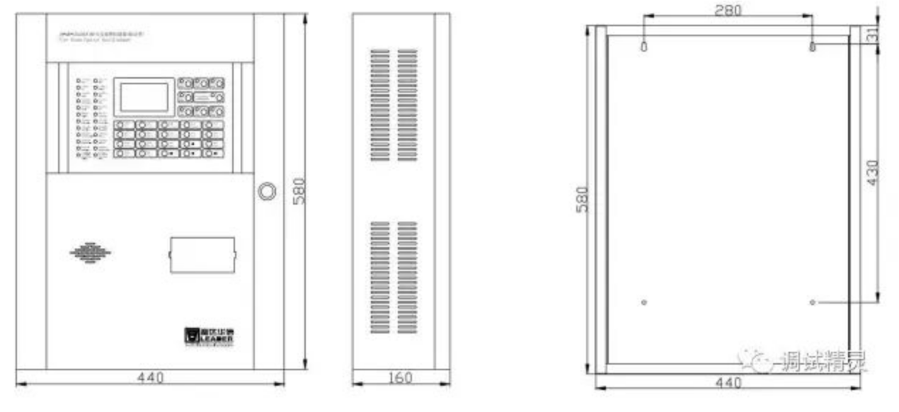
128EN(M)主機尺寸圖下圖:

128EN(M)—AI氣體滅火一體機尺寸:

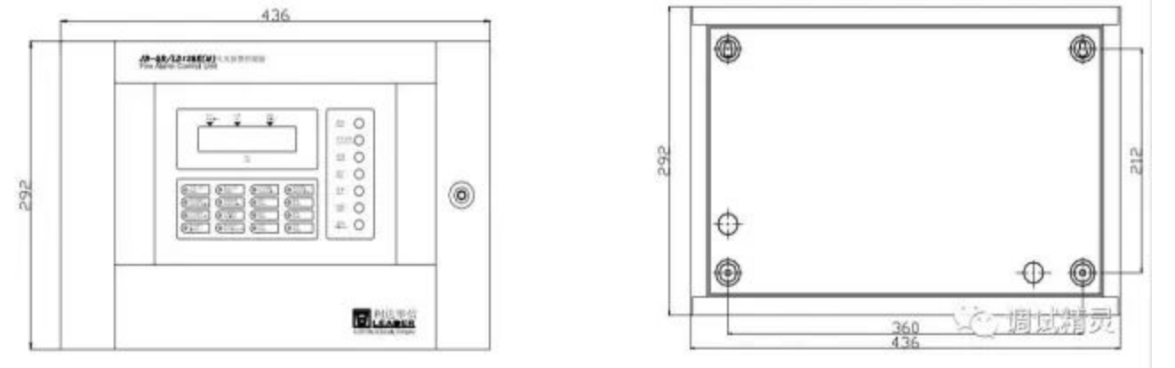
128EM主機尺寸如下圖:

壁掛電源尺寸如下圖:

128ET尺寸如下圖:

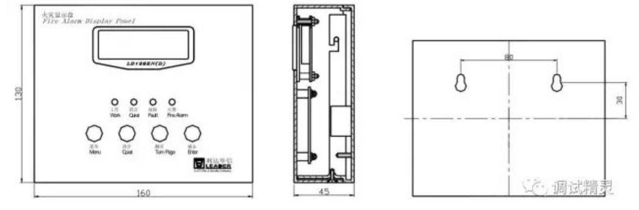
128E(D)尺寸如下圖:

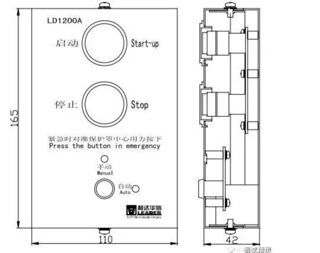
LD1200A啟停按鈕尺寸如下圖:

氣體滅火門燈尺寸如下圖:

5503氣體滅火尺寸如下圖:


公司資質
檢測報告
檢測報告
環境管理體系證書
質量管理體系證書
蘇公網安備32058102002152號