利達JB-QB-LD198EL-E火災報警控制器(聯動式)

一、利達JB-QB-LD198EL-E火災報警控制器(聯動式)介紹
利達JB-QB-LD198EL-E火災報警控制器(聯動型)我公司為滿足消防市場的需求而研制的新一代火災報警控制器。采用模塊化設計,使用嵌入式實時操作系統,具有可靠、高效和良好的可擴展性的特點。該機型可以單獨使用,也可以聯網構成一個多機網絡系統使用。
配合利達消防E/EN系列探測器、模塊、手報及其他相關設備,可廣泛應用于小型項目。經過消防產品合格評定中心及國家消防電子產品質量監督檢驗中心依照GB4717-2005《火災報警控制器》、GB16806-2006《消防聯動控制系統》,《強制性認證實施規則》、《強制性產品認證實施細則》檢驗和審核,符合認證要求,取得消防產品3C認證。通過了英國BRE認證機構的認證,獲得了LPCB及CE認證證書,符合EN54-2、EN54-4標準。
二、利達JB-QB-LD198EL-E火災報警控制器(聯動式)功能
◎集中區域兼容型控制器,單機容量:2回路、最大總線地址512(回路設備地址,不包括盤類的設備地址)、1路專用聲光報警輸出、8路聯動輸出。
◎采用320×240單色液晶,顯示本機及聯網機狀態,各按鍵操作方便快捷。
◎支持中/英文顯示,語言環境的切換采用更換語言腳本的技術,可以靈活、便捷實現中/英文顯示。
◎中文或英文打印信息輸出。
◎支持探測區和警報區的設置和操作,探測區由探測器、手報等輸入設備組成,警報區由聲光警報器等輸出設備組成。
◎可通過CAN總線方式與全系列火災報警控制器聯網。
◎可通過配接LD198EL-E以太網接口卡實現以太網通訊,與其它設備聯網。聯網通訊采用多重優先級的網絡技術,可靠性、實時性強。節點機之間可采用光纖和線纜兩種物理連接方式。可通過配接LD198EL-E聯網卡(RS485通訊)或配接LD198EL-E光纖接口卡(光纖通訊)實現環形網。
◎可使用專用軟件完成控制器的配置工作,提供以太網、串口、SD卡、U盤等多種配置數據庫上傳下載方式。
◎具有黑匣子功能,可記錄9類事件的歷史記錄信息。火警、故障、啟動各1024條,監管、屏蔽、延時、預警、氣體、操作等信息各256條。
◎具有用戶權限等級控制。共3個用戶操作等級。
◎具有1路公共火警無源接點輸出,1路故障無源接點輸出。
◎具備監管報警功能。
◎具有回路保護、電源短路保護功能。
◎支持探測總線環路布線方式。
三、利達JB-QB-LD198EL-E火災報警控制器(聯動式)技術參數
型號 JB-QB-LD198EL-E
主電源電壓 AC220V(187-242V) 50Hz
回路輸出電壓 DC14V-24V
聯動輸出參數 DC24V/2A
回路數量 2回路
最大總線設備地址數 512(回路設備地址,不包括盤類的設備地址)
最大回路輸出電流 200mA
最大短路保護電流 400mA
空載功耗 ≤30W
探測區 999
報警區 999
工作環境溫度 -10℃~50℃
工作環境濕度 ≤95%RH(40±2℃)
安裝方式 壁掛
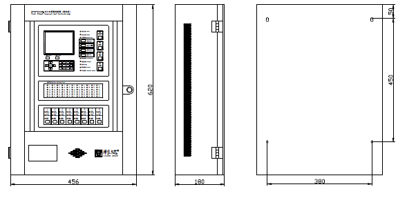
外形尺寸 長456mm*寬180mm*高620mm
重量 18.0±0.1Kg
四、利達JB-QB-LD198EL-E火災報警控制器(聯動式)外形結構示意圖

五、利達JB-QB-LD198EL-E火災報警控制器(聯動式)外形結構示意圖


公司資質
檢測報告
檢測報告
環境管理體系證書
質量管理體系證書
蘇公網安備32058102002152號